İmar yönetmeliğine uygun mimari proje çizimi, bir yapının yasal zeminde inşa edilebilmesi adına atılan ilk adımdır. Bir arsanız var ve buraya bir bina yapmak istiyorsunuz. Kafanızdaki tasarımı doğrudan araziye uygulayamazsınız. Belediyelerin ve bakanlıkların koyduğu kesin kurallar vardır. Bu kurallar bütününe imar yönetmeliği denir. Çizilen her çizgi, belirlenen her ölçü bu yönetmeliklere uymak zorundadır. Uymayan projeler ruhsat alamaz. Ruhsat alamayan yapılar kaçak durumuna düşer. Bu yüzden süreci en başından sıkı tutmak lazımdır. Doğru bir mimari proje, sadece estetik kaygılar taşımaz; aynı zamanda kanunlara tam uyum gösterir.
İmar Durumu Belgesi ve Projeye Hazırlık Aşaması
Proje çizimine başlamadan önce eldeki verilerin toplanması şarttır. Mimarın kalemi eline almadan önce bakacağı ilk evrak imar durumu belgesi olur. Bu belge ilgili belediyeden alınır. Arsanın yapılaşma koşulları burada yazar. Belge üzerinde TAKS (Taban Alanı Katsayısı) ve KAKS (Kat Alanı Katsayısı) gibi kısaltmalar görürsünüz. Bu değerler binanın ne kadar genişlikte ve kaç katlı olacağını sınırlar. Mimar, tasarımı bu sınırlara hapsolmadan, yaratıcı çözümlerle şekillendirir.
Belgede ayrıca çekme mesafeleri yer alır. Binanın yola veya komşu parsele ne kadar yaklaşabileceği burada nettir. Bu mesafelere uyulmazsa proje onaylanmaz. Harita mühendisleri tarafından hazırlanan aplikasyon krokisi ise arsanın tam koordinatlarını verir. Arsanın köşe noktaları, kot farkları bu krokiyle netleşir. Zemin etüt raporu toprağın yapısını anlatır. Deprem yönetmeliğine uygun statik hesaplar bu rapora göre yapılır. Tüm bu belgeler mimarın masasında durur. Tasarım süreci bu veriler ışığında başlar.
Mimari Tasarım ve Avan Proje Çalışmaları
Veriler toplandıktan sonra tasarım aşamasına geçilir. Mimar, arsa sahibinin isteklerini dinler. Kaç oda istendiği, mutfağın konumu, salonun cephesi gibi detaylar konuşulur. Tint Mimarlık olarak biz, Ankara Çayyolu merkezli ofisimizde bu dinleme sürecine çok değer veririz. Kullanıcının yaşam alışkanlıkları tasarımı yönlendirir. İstekler ve yönetmelik kuralları harmanlanır. Ortaya avan proje çıkar. Avan proje, yapının taslak halidir. Odaların yerleşimi, bina kütlesi, cephe önerileri bu aşamada belli olur.
Avan proje üzerinde arsa sahibiyle fikir alışverişi yapılır. Beğenilmeyen yerler değişir. Mutfak büyür, balkon kayar veya pencere yerleri oynar. Bu aşamada değişiklik yapmak kolaydır. Henüz resmi başvuru yapılmamıştır. Kağıt üzerinde yapılan her değişiklik maliyetsizdir. Ancak beton döküldükten sonra dönüş zordur. Bu sebeple avan proje aşamasında tüm detayların netleşmesi gerekir.
Planlı Alanlar İmar Yönetmeliği Kriterleri
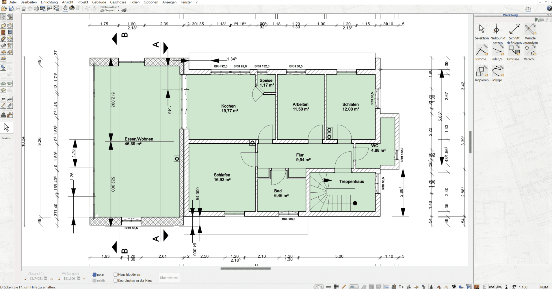
Kesin proje çizilirken referans alınan ana kaynak Planlı Alanlar İmar Yönetmeliği maddeleridir. Bu yönetmelik, bir konutun veya iş yerinin minimum ölçülerini belirler. Örneğin bir yatak odası belli bir metrekarenin altında olamaz. Net tavan yüksekliği 2.60 metreden az çizilemez. Koridor genişlikleri, kapı ebatları hep bu yönetmelikte yazar. Mimar bu ölçülere sadık kalır.
Işıklık ölçüleri bir diğer kritik konudur. Banyo ve tuvaletlerin havalandırması için bırakılan boşluklar yönetmeliğe uygun hesaplanır. Yetersiz ışıklık, projenin geri dönmesine sebep olur. Asansör boşluğu ölçüleri de standarttır. Binadaki kat sayısına ve daire yoğunluğuna göre asansör kapasitesi seçilir. Bu kapasiteye uygun kuyu ölçüleri projeye işlenir. Yangın yönetmeliği ise hayati bir konudur. Kaçış yolları, yangın merdiveni kapılarının yönü, duman tahliye bacaları projede yerini alır. Hata kabul etmeyen bu detaylar, insan hayatını korumayı amaçlar.
Ruhsat Projesi ve Diğer Disiplinlerle Koordinasyon
Mimari proje tek başına bir binayı inşa etmeye yetmez. Binanın ayakta durması, elektriğinin yanması, suyunun akması gerekir. Diğer mühendislik disiplinleri devreye girer. Statik proje, binanın iskeletini oluşturur. Kolonların yeri, kirişlerin kalınlığı mimariyle uyumlu gider. Mimarın koyduğu pencereye statik mühendisi kolon dikemez. Bu uyumu yakalamak mimarın görevidir.
Mekanik proje, ısıtma, soğutma ve sıhhi tesisatı çözer. Boruların geçeceği şaft yerleri mimari planda gösterilir. Elektrik projesi ise priz yerlerini, aydınlatma armatürlerini ve panoları belirler. Tint Mimarlık bünyesinde geliştirdiğimiz 200’ü aşkın projede gördük ki, disiplinler arası iletişim kopukluğu şantiyede büyük sorunlar doğurur. Proje masasında çözülmeyen her çakışma, inşaat sırasında kırım ve döküm demektir. Bu da ekstra maliyet yaratır. Tam takım proje, tüm birimlerin üst üste çakıştırılarak kontrol edildiği projedir.
Belediye Onay Süreci ve Ruhsat Alımı
Çizimler bitti, imzalar atıldı. Hazırlanan mavi dosyalar veya dijital kopyalar belediyenin imar müdürlüğüne teslim edilir. Sürecin en sancılı kısmı bazen burasıdır. Belediyedeki raportörler projeyi didik didik inceler. Yönetmeliğe aykırı en ufak bir çizgi, projenin iade edilmesine neden olur. Buna “tadilata girmek” denir. Mimar, istenen düzeltmeleri yapar. Bazen çatı eğimi fazla bulunabilir. Bazen emsal hesabı yanlış çıkar. Düzeltmeler yapılıp dosya tekrar içeri verilir.
Bu git-geller zaman kaybı yaratır. Tecrübeli bir mimar, belediyenin neye dikkat ettiğini bilir. Projeyi ilk seferde doğruya en yakın şekilde hazırlar. Onay alındıktan sonra yapı ruhsatı kesilir. Yapı ruhsatı, inşaata başlama iznidir. Bu belge olmadan çivi bile çakılmaz. Ruhsatın alınmasıyla mimarın proje üzerindeki yasal sorumluluğu başlar ve yapı bitene kadar devam eder.
Otopark Yönetmeliği ve Peyzaj Düzenlemeleri
Son yıllarda sıkça güncellenen Otopark Yönetmeliği, mimari projelerin şekillenmesinde büyük rol oynar. Her daire için otopark yeri ayrılması zorunludur. Parsel içinde yer varsa açık veya kapalı otopark çözülür. Yer yoksa, binanın bodrum katlarına inilir veya asansörlü otopark sistemleri düşünülür. Otopark rampasının eğimi, dönüş çapları yönetmelikteki standartlara uyar. Aracı park edemeyen bir proje onay almaz.
Peyzaj projesi de ruhsat dosyasının bir parçasıdır. Binanın oturmadığı alanların nasıl değerlendirileceği çizilir. Ağaçlandırılacak alanlar, sert zeminler, yağmur suyu drenajı peyzaj projesinde görünür. Yeşile alan ayırmak yasal bir zorunluluktur. Beton yığınına dönmüş parseller yönetmelikçe kabul görmez. Sürdürülebilir ve doğa dostu çözümler hem yasalara uygundur hem de şehrin nefes almasına katkı verir.
Mimari Görselleştirme ve 3D Sunumun Yeri
Teknik çizimler mal sahibi için karmaşık durabilir. Kat planına bakınca duvarı, kapıyı anlamak zordur. Burada 3D görselleştirme hizmeti işi kolaylaştırır. Binanın bittiğinde nasıl görüneceği, cephe kaplamaları, renkler üç boyutlu görsellerle anlatılır. Ankara, İzmir, Eskişehir ve Muğla gibi farklı şehirlerde modern projeler üreten ofisimiz, görselleştirmeyi bir iletişim dili olarak görür. Mal sahibi, binasını gerçekçi resimlerle görünce içine siner. Müteahhit ise ne yapacağını daha net anlar. Satış pazarlama aşamasında da bu görseller büyük fayda verir.
Tadilat Projesi ve Mevcut Yapılarda Değişiklik
Sadece sıfırdan yapılan binalar için değil, mevcut binalarda yapılacak büyük değişiklikler için de proje çizilir. Buna tadilat projesi denir. Taşıyıcı sistemi etkileyen, bina dış görünüşünü değiştiren veya kullanım amacını dönüştüren işlemler ruhsata tabidir. Örneğin bir konutu ofise çevirmek veya balkonu odaya katmak isterseniz tadilat projesi çidirmeniz gerekir. Süreç, yeni yapı ruhsatı almakla benzer işler. Yine belediye onayı, yine yönetmelik uyumu aranır. İzinsiz yapılan tadilatlar belediye tarafından mühürlenir ve para cezası kesilir. Yasal yoldan şaşmamak, mülk sahibini korur.
Enerji Kimlik Belgesi ve Yalıtım Standartları
Yeni binalarda enerji verimliliği artık bir tercih değil, zorunluluktur. Enerji Kimlik Belgesi (EKB), binanın ne kadar enerji harcadığını sınıflandırır. A sınıfı en verimli, G sınıfı en verimsizdir. Yeni binaların en az C sınıfı olması istenir. Mimar, projede kullanacağı yalıtım malzemelerini buna göre seçer. Duvar kalınlıkları, cam özellikleri, çatı izolasyonu ısı kaybını önleyecek şekilde detaylandırılır. Mantolama detayları kesitlerde gösterilir. Enerji tasarrufu sağlayan binalar hem çevreyi korur hem de kullanıcının fatura yükünü hafifletir.
Profesyonel Mimarlık Ofisi ile Çalışmanın Avantajı
İnşaat yapmak pahalı ve riskli bir yatırımdır. Yanlış çizilen bir proje, şantiyede binlerce liralık hataya neden olur. Profesyonel bir mimarlık ofisi, bu riskleri yönetir. Mevzuata hakimiyet, olası cezaların önüne geçer. İşlevsel tasarım, ölü alanları yok eder. Estetik cephe, binanın değerini artırır. Biz Tint Mimarlık olarak villa, konut, ofis, karma kullanım ve sanayi yapıları gibi her ölçekte proje üretiyoruz. Tasarımlarımızda sadece bugünü değil, yapının yıllar sonraki durumunu da düşünürüz. Kullanıcı odaklı yaklaşımımız, mekanlara kimlik kazandırır.
Sık Yapılan Hatalar ve Dikkat Edilmesi Gerekenler
Projelerde en sık yapılan hataların başında kot hesabı gelir. Arazinin eğimi yanlış yorumlanırsa bina toprağa gömülür veya havada kalır. Subasman kotunun doğru belirlenmesi girişin rahat olması adına kritiktir. Bir diğer hata, tesisat boşluklarının unutulmasıdır. Sonradan kırılan döşemeler binaya zarar verir. Çatı arasındaki kullanım alanları da yönetmelikle sınırlıdır. Burayı tam kat gibi kullanmaya çalışmak ruhsat iptaline kadar gider. Balkon çıkmaları, parsel sınırını ihlal etmemelidir. Komşunun hakkına giren bir yapı yasal değildir.
Malzeme seçimleri de projede belirtilir. Dış cephede kullanılacak boyanın, kaplamanın türü yazılır. Bu seçimler belediyenin estetik kurulundan onay alır. Bazı bölgelerde dış cephe rengine belediye karar verir. Mimarın bu yerel kuralları bilmesi süreci hızlandırır. Yangın yönetmeliğindeki değişikleri takip etmemek projeyi sil baştan çizdirir. Güncel bilgi, mimarın en büyük silahıdır.
Doğru Mimar Seçimi ve İletişim
Proje süreci uzun bir maratondur. Bu süreçte mimarınızla iletişiminiz kopmamalıdır. Sizi anlayan, isteklerinize kulak veren ama yönetmelikleri de net bir dille anlatan bir mimar seçmelisiniz. “Her şeyi hallederiz” diyen değil, “Bunu yaparsak yönetmeliğe aykırı olur, ama şöyle bir çözüm üretebiliriz” diyen mimar size zaman kazandırır. Şeffaflık, güveni doğurur.
Ankara’da proje çizdirirken o bölgenin iklimini, sosyal yapısını bilen bir ofis avantajdır. Ancak vizyonu geniş ofisler, şehir sınırlarını aşar. İzmir’de, Muğla’da proje yapmak, oranın dokusunu anlamayı gerektirir. Biz, yerel verileri modern mimariyle birleştiriyoruz. Her proje yeni bir problem çözme sanatıdır. Problemleri estetikle çözmek mimarlığın özüdür.
